Since 1951, the Ocean Beach clubhouse has provided hours of fun and activities for all ages.
Due to damage from Superstorm Sandy, our beloved clubhouse was deemed substantially damaged and was decommissioned as of 10/29/2021. Once the NJ DEP Coastal Area Facilities Review Act of 1973 (CAFRA) permit is approved, we can begin building a new and improved Clubhouse. However, that will not deter us from enjoying the amenities of the Bay Beach during the summers of 2022 and 2023.
In September 2023 the original clubhouse was demolished. Photos of the new clubhouse construction progress are available on the website’s Photos page. See the rendering of the new clubhouse below.


Evolution of the New Clubhouse
We are building a new clubhouse. A detailed description of the history of this project has been created. The purpose of this summary is to help everyone understand the effort that has been going into this project. To view the summary, click here.
Rebuild Status Updates:
- August 2025 – The Clubhouse is completed and the CO has been received.
- August 26, 2024 – New Clubhouse construction will begin Tuesday, September 3, 2024 with delivery of materials to the work site. To prepare for this, the construction fencing will be extended on three sides starting Thursday, August 29, 2024.
- June 16, 2024 – Increment weather and unexpected issues has delayed the completion of this project. Construction is on hold while we all enjoy the summer season. All of the usual clubhouse activities have been moved to the Barn at the north east side of the bay area for this season only.
- April 30, 2024 – The Barn has been completed, including the siding. Landscaping has begun. The foundation of the new clubhouse is complete and work on the walls has begun. If you have not been at the site to see it, check out the new photos added today to the Photos page. A detailed description of the work to be completed before the season starts is being worked on by the Board and the construction team. We hope that will be available shortly. All activities will be held at the Barn this summer.
- Nov. 25, 2023 – The old clubhouse was demolished in September 2023 and the work on the new clubhouse has begun. The area has been leveled and construction fencing surrounds the construction area. Photos will continue to be added to the Photos page of the website as the construction continues.
The bid process was completed and a contractor was selected, Barlo, Governale & Associates. The bid summary sheet they provided can be reviewed, click here.
A survey was taken to decide on certain optional features of the clubhouse. The results of that survey is available, click here. - Jan. 21, 2023 – The New Clubhouse Committee met on Saturday, January 21st to discuss key updates to the New Clubhouse project. Notes are as follows:
- Plans have been submitted to the Ocean County Planning Board, Ocean County Soil Conservation and the Toms River Sewer Authority.
- Our attorneys are still in the process of submitting plans to Toms River.
- Once the attorneys submit to Toms River, residents within 200 feet of the clubhouse will be notified about the Toms River Planning Board Meeting. We expect these letters to go out toward the end of February or early March.
- Members will have the opportunity to attend the Toms River Planning Board meeting to address any concerns. Date and Time is still TBD. However, according to the Toms River website, Planning Board Meetings take place on Wednesday evenings at 6:00PM.
- Members will be notified about 10 days prior to the Planning Board Meeting.
- 3D renderings of the new clubhouse should be received within 2-3 weeks of Jan 21. Once received the New Clubhouse Committee will work on putting together a survey for membership input on 3 different combinations for the clubhouse, which will include items such as the exterior color, the roofing color and the trim color. Whatever is selected for the clubhouse will also be used on the Pole Barn. Please ensure the Clubhouse office has your proper e-mail address on file.
- Dec. 3, 2022 –
- Necessary steps have begun for the permits with the Township, County and Soils Division.
- All forms and fees have been filed or are in process. All monies have been taken from the NCH account. Three checks were written for the permits which have been previously forwarded to all.
- The town will schedule for a hearing probably in February or March 2023. Ten days prior to the Township Meeting letters will go out to anyone within 200 feet of the clubhouse.
- Mid-February: the Clubhouse Committee will have a meeting to discuss the construction details, contractors design aspects etc.
- The pole barn may be up prior to the summer season.
- Bathroom facilities will need to be rented again for the Summer of 2023. The committee is working to ensure we will have some power and water for social events as we did last season.
- Oct. 15, 2022 – The Clubhouse Committee met on Saturday, October 15th to discuss “Phase 2” of the New Clubhouse project.
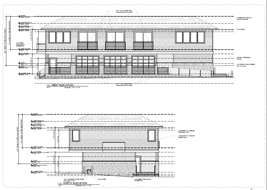
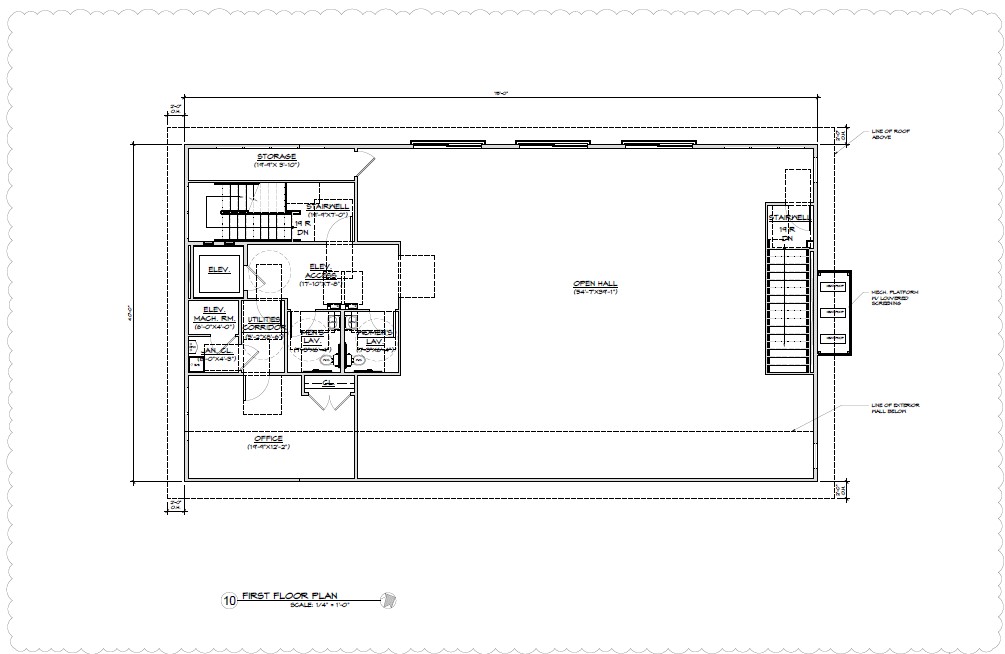
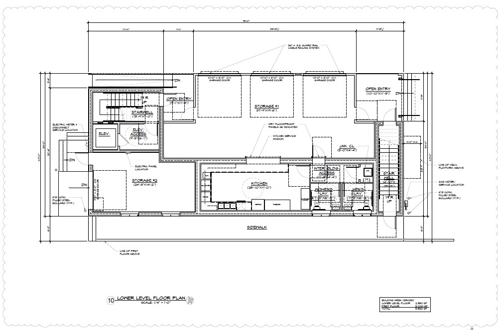
- The New Clubhouse dimensions currently stand at 75′ long, by 34′ wide (on the bottom level) and 40′ wide on the top level. (6 foot overhang on the Route 35 South side)
- The top level of the clubhouse will house a General Meeting Area, the OB3 Club Office and 2 bathrooms,
- The lower level will house a kitchen for concessions, room for games, 2 more bathrooms, along with an elevator and stairs to the 2nd level.
- A separate structure, a Pole Barn, will be 24′ x 30′ and will placed in the current corral area. This will store maintenance equipment and our trucks.
- Next steps: Present plan designs to the Toms River Planning Board. A public meeting will be held for all members of OB3. Details of when that meeting will take place will be shared.
- Discussions took place on how to survey members to help choose paint colors, roofing options and other design elements for the New Clubhouse. Still in progress.
- The existing clubhouse will NOT be demolished until ALL permits (including Toms River permits) are approved.
- At this time, we do not expect to have a functioning clubhouse for the Summer of 2023.
- Once all approvals on permits are met, construction will start. We anticipate that to take about 6-8 months.
- Sept. 28, 2022 – The New Jersey Department of Environmental Protection Agency (NJDEP) APPROVED the Ocean Beach & Bay Club (OB3) Coastal Area Facilities Review Act of 1973 (CAFRA) permit for the new clubhouse. What this means…we can now move forward with the demolition and plans for building the NEW clubhouse. Lots to do to move forward with permits from Toms River but this major hurdle has been cleared! CAFRA Permit can be found here
- Sept. 1, 2022 – Revised plot layout submitted to DEP and CAFRA, which puts us back in a 30-day review.
- July 2022 – Historical 30 day review has been approved. The status of the plot layout will be determined. We are now 45 days into the final CAFRA approval stage.
- April 2022 – A trailer style restroom facility will be parked on the bay beach, near the parking lot entrance in the driveway, from May 25th through October 1, 2022. The trailer will consist of one male and two female restrooms, and will be professionally cleaned on a daily basis. The board approved the cost of $10,000 for the temporary restrooms during the April 14th Board Meeting.
- Feb. 2022 – CAFRA responded to 1st round of drawings stating that the clubhouse needs to be moved approximately 20 feet south, and the deck facing the bay also needs to be removed, due to the clubhouse being too close to the water. Beach erosion has led to this decision. The clubhouse size is also changing from 66′ long to 75′ long; and will be 34′ deep. The lower level will contain the concessions, bathrooms, games and picnic tables. The upper level will contain a large meeting space, and the club office.
- Oct. 29, 2021 – All utilities turned off to the clubhouse, and clubhouse is now out of commission.
- May 5, 2021 – Permits filed with DEP/CAFRA and residents within 200′ of clubhouse were notified.
- May 5, 2021 – 1st round architectural drawings were submitted to CAFRA/DEP.
- 2019 – 2020 – The clubhouse must be raised 8 feet per FEMA standards. The existing clubhouse can not be raised, as it would not sustain being lifted. The only solution is to build a new, raised, clubhouse. Fundraising efforts put in place to help the costs.
- June 14, 2014 – Substantially Damaged Letter mailed, but not received until January 2019. .
Zoom Meeting – May 29, 2021 @ 9 AM
Zoom Meeting – May 8, 2020
- Presentation
- Link to Meeting Recording – Password: 9g*L?+#N




